پلان معماری چیست | مقدمه ای بر پلان معماری
پلان معماری در حقیقت نقشهای است که تمام جزئیات یک ساختمان را قبل از ساخته شدن به تصویر میکشد. تصور کنید میخواهید یک خانه بسازید؛ اولین چیزی که نیاز دارید، دیدن یک نمای کلی از آن بناست: اتاقها در کدام قسمت قرار دارند؟ چیدمان به چه صورت است؟ راهروها، پنجرهها، و درها چگونه با هم در ارتباطند؟ پلان معماری دقیقاً همین عمل را انجام میدهد؛ به شما کمک میکند قبل از نهایی شدن، همه چیز را در ذهن خود ببینید و تصور کنید.

این نقشه فقط مختص معماران نیست، بلکه هر کسی که بخواهد خانهای طراحی کند یا درک بهتری از یک ساختمان داشته باشد، پلان معماری بهترین گزینه است. با دیدن یک پلان معماری، میتوانید بفهمید چگونه فضاها با هم ارتباط میگیرند و بهترین استفاده از هر بخش چگونه خواهد بود. اگر به دنبال درک بهتر و سادهتری از چگونگی طراحی و اجرای جزییات ساختمانها هستید، آشنایی با پلان معماری اولین گام برای شما خواهد بود. در این مقاله از زئوس به بررسی صفر تا صد پلان معماری پرداختیم.
تعریف پلان معماری | چیستی و چرایی
تعریف پلان معماری به زبان ساده:
پلان معماری در سادهترین تعریف، یک نقشه دو بعدی است که نشانگر بخشهای مختلف یک ساختمان است. برای مثال، در طراحی یک خانه، پلان معماری به شما نشان میدهد که اتاق خوابها کجا هستند، آشپزخانه چطور با سالن پذیرایی در ارتباط است، و حتی چیدمان درها و پنجرهها به چه شکل است. پلان به شما این امکان را میدهد که قبل از شروع ساخت، یک دید کلی و روشن از فضای ساختمان داشته باشید و همه چیز را به درستی برنامهریزی نمایید.
تعریف تخصصی پلان معماری:
از جنبه تخصصیتر، پلان معماری تنها یک نقشه نیست؛ بلکه یک ابزار پیچیده است که نه تنها ارتباطات فضایی و نحوه جریان حرکت در ساختمان را نشان میدهد، بلکه به عناصر فنی مانند سیستمهای تاسیساتی، نورگیری، و حتی نحوه عبور و مرور هوا در ساختمان نیز مربوط است. مثلا، یک پلان اصولی باید به بهینهسازی فضا، نور طبیعی و حتی مسائل ایمنی مثل مسیرهای خروج اضطراری نیز توجه داشته باشد.

انواع پلان معماری | چند نوع پلان داریم
پلان معماری انواع مختلفی دارد که هر یک با توجه به هدف و نوع پروژه طراحی میگردند. هر نوع پلان بخشهای خاصی از ساختمان را نشان میدهد و اطلاعات متفاوتی را به تیم طراحی و سازندگان ارائه میکند. در ادامه مهم ترین نوع پلان های معماری را بررسی خواهیم کرد:
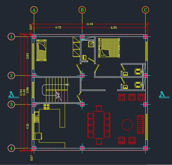
- پلان طبقه (Floor Plan)
این نوع پلان، معروفترین و رایجترین نوع پلان معماری میباشد. پلان طبقه، نمایی از ساختمان را از بالا نشان میدهد، به گونهای که گویا سقف آن برداشته شده تا فضاهای داخلی و نحوه چیدمان آنها قابل مشاهده باشد. در این پلان، دیوارها، اتاقها، درها، پنجرهها، و چیدمان کلی فضاها به وضوح قابل مشاهده است. برای نمونه، پلان طبقه به شما نشان میدهد که آشپزخانه کجاست و چگونه با اتاق نشیمن در ارتباط است.
- پلان سایت (Site Plan)
پلان سایت، موقعیت کلی ساختمان را نسبت به محیط اطرافش نشان میدهد. در این نوع پلان، موقعیت ساختمان در سایت، ارتباطات با خیابانها، دسترسیها، محوطهسازی، و حتی جزئیاتی مانند پارکینگها و راههای ورود و خروج مشخص میگردد. این نوع پلان برای طراحیهای شهری و پروژههای بزرگ بسیار قابل اهمیت است، زیرا نشان میدهد که ساختمان چگونه با محیط اطراف خود در تعامل است.
- پلان مبلمان (Furniture Plan)
این نوع پلان بیشتر برای طراحی داخلی مورد استفاده است. پلان مبلمان، محل قرارگیری دقیق مبلمان و وسایل داخلی را در فضاهای مختلف نشان خواهد داد. این پلان به معماران و طراحان داخلی کمک میکند تا بهترین چیدمان را برای فضاها در نظر بگیرند و از فضا بهینهترین استفاده را ببرند.

- پلان سازه (Structural Plan)
پلان سازه مربوط به ساختار فیزیکی ساختمان میباشد و به عناصر سازهای مانند ستونها، تیرها، دیوارهای باربر، و فونداسیون اشاره میکند. این پلان برای مهندسان سازه و سازندگان اهمیت بسیاری دارد، زیرا در آن جزئیات مربوط به ساختارهای مقاومتی ساختمان مشخص میگردد.
- پلان الکتریکی (Electrical Plan)
پلان الکتریکی نشانگر محل دقیق نصب سیستمهای برقی و نقاط اتصال برق میباشد. در این پلان، محل قرارگیری کلیدها، پریزها، چراغها، و سیستمهای برقی بزرگتر مانند تابلوهای برق تعیین میشود. این پلان برای اطمینان از درست نصب شدن و عملکرد مناسب سیستمهای برقی ضروری میباشد.
- پلان مکانیکی (Mechanical Plan)
این نوع پلان به سیستمهای مکانیکی ساختمان مربوط است، از جمله سیستمهای گرمایش، تهویه و تهویه مطبوع (HVAC). همچنین محل قرارگیری سیستمهای لولهکشی، چیلرها، و داکتهای تهویه در این پلان مشخص میشود. این پلان برای مهندسان مکانیک بسیار جدی است تا از عملکرد درست این سیستمها اطمینان حاصل نمایند.

- پلان تاسیساتی (Plumbing Plan)
پلان تاسیساتی به محل دقیق لولهکشیها، شیرآلات، و تجهیزات آب و فاضلاب مرتبط است. این پلان در پروژههای بزرگ یا ساختمانهای صنعتی و مسکونی بسیار ضروری است، چرا که سیستمهای لولهکشی و آبرسانی باید به درستی و با دقت در محلهای مناسب جایگذاری شوند.
- پلان جزئیات (Detail Plan)
پلان جزئیات شامل بخشهای خاص و مهمی از یک ساختمان میباشد که نیاز به نمایش دقیقتری دارند. به طور مثال، اگر بخشی از ساختمان مانند راهپله یا یک نمای خاص نیاز به بررسی جزئیتر داشته باشد، از پلان جزئیات استفاده میشود تا تمام ابعاد و اندازهها با دقت بیشتری بررسی شوند.
- پلان بام (Roof Plan)
پلان بام نمای کلی از طراحی سقف یا بام ساختمان را به نمایش میگذارد. در این نوع پلان، شیب بام، موقعیت ناودانها، بازشوهای سقفی (مانند پنجرههای سقفی) و مواد بهکاررفته در بام مشخص میگردد. این پلان به ویژه در پروژههای مسکونی و تجاری که طراحی بام اهمیت ویژهای دارد، کاربرد ویژه ای دارد.

اهمیت پلان در معماری | چرا باید از پلان استفاده کنیم
اهمیت پلان در معماری به اندازهای حیاتی است که میتوان آن را اساس و شالوده هر پروژه معماری نامید. پلان معماری، نه تنها نقشهای است که ساختمان را به صورت فیزیکی به نمایش میگذارد، بلکه مفهومی است که تأثیرات بسیاری بر عملکرد، زیبایی، هزینهها و تجربه کاربری در فضای نهایی ساختمان دارد. در ادامه، مهم ترین ابعاد اهمیت پلان معماری را شرح خواهیم داد:
- سازماندهی فضاها
پلان معماری به معماران اجازه میدهد تا فضاها را به صورت منطقی و کاربردی سازماندهی نمایند. این سازماندهی فضاها به کاربران کمک میکند تا به راحتی و بهینه از محیط استفاده کنند و تجربهای بهتر از زندگی در آن فضا را تجربه کنند.
- رابطه فرم و عملکرد
جالب است بدانید در معماری، جمله معروفی وجود دارد که میگوید: “فرم تابع عملکرد است.” پلان معماری، این رابطه میان فرم (شکل و ظاهر) و عملکرد (نحوه استفاده) را برقرار مینماید. برای مثال، در یک خانه مسکونی، اگر آشپزخانه و اتاق غذاخوری در نزدیکی هم طراحی شوند، کاربری و راحتی بیشتر برای افراد ایجاد خواهد شد.
- بهینهسازی فضا و منابع
یک پلان استاندارد، از فضاهای موجود به بهترین شکل استفاده میکند و از هدررفت فضاها و منابع جلوگیری مینماید. این بهینهسازی میتواند در برگیرنده طراحی فضاهای بازتر، راهروهای کوتاهتر و قرار دادن اتاقها به گونهای باشد که نور طبیعی به خوبی وارد ساختمان شود.
- کنترل هزینهها
پلان معماری میتواند نقش مهمی در مدیریت هزینههای ساختوساز داشته باشد. با طراحی درست پلان، میتوان از مصالح کمتری استفاده کرد و هزینههای اضافه مانند تغییرات در حین ساخت را به حداقل رسانید. مثلا اگر پلان به درستی طراحی نشود، ممکن است نیاز به تغییرات ناخواستهای در زمان ساخت پیش بیاید که هزینههای پروژه را زیاد کند. توجه داشته باشید پلانهایی که از منابع طبیعی مانند نور و تهویه طبیعی بهرهبرداری کنند، هزینههای انرژی را در طولانیمدت کاهش میدهند.

- تسهیل درک و ارتباط میان تیمها
پلان معماری به عنوان یک زبان مشترک میان معماران، مهندسان، پیمانکاران و حتی مشتریان مورد استفاده قرار میگیرد. با استفاده از پلان، همه افراد درگیر در پروژه به راحتی میتوانند نحوه اجرای پروژه را درک کرده و بر اساس آن برنامه ریزی کنند. مثلا یک مهندس سازه از طریق پلان سازهای، مکان ستونها و تیرها را متوجه میشود و یک پیمانکار بر اساس پلان الکتریکی، سیمکشیهای برق را اجرا خواهد کرد.
- تأثیرگذاری بر تجربه کاربر
اگر پلان به گونهای طراحی شود که فضاها به خوبی در دسترس باشند، نور طبیعی به درستی در اتاقها جریان داشته باشد، و راهروها و مسیرهای ارتباطی به بهترین نجو پیاده سازی شوند، کاربران احساس راحتی و آرامش بیشتری خواهند داشت. مثلا در ساختمانهای اداری، پلانهایی که فضاهای باز و ارتباطات بصری مناسبی را بین کارمندان ایجاد میکنند، بهرهوری و رضایت را افزایش میدهد.
- حل چالشهای فنی و زیستمحیطی
پلان باید به نحوی طراحی شود که ساختمان در برابر نیروهای طبیعی مثل باد یا زلزله مقاوم باشد.
- هدایت پروژه از طراحی تا اجرا
پلان، به عنوان سندی اصلی در پروژههای معماری عمل میکند و تمام مراحل از طراحی تا اجرا را در خود جای میدهد. بدون وجود یک پلان دقیق، پروژه دچار تأخیر، ناهماهنگی و هزینههای اضافی میگردد.

فرآیند طراحی پلان معماری به چه صورت است؟
فرآیند طراحی پلان معماری مانند ترسیم نقشهای برای رسیدن به مقصدی ویژه است. هر مرحله از این فرآیند باید با دقت و نظم انجام گیرد تا در نهایت ساختمانی کاربردی، زیبا و منطبق بر نیازهای کاربران ساخته شود. در اینجا به سادهترین شکل ممکن، مراحل طراحی پلان معماری را بررسی خواهیم کرد:
- تحلیل نیازها و بررسی شرایط اولیه
اولین گام در طراحی پلان، شناخت دقیق از نیازهای کاربران و پروژه میباشد. شما باید بدانید که این ساختمان چه کاربردی خواهد داشت (مسکونی، اداری، تجاری و غیره) و چه تعداد فضا (اتاق خواب، آشپزخانه، سالن، سرویس بهداشتی و غیره) در آن نیاز است. همچنین، شرایط سایت (زمین) نیز باید بررسی گردد؛ مثل ابعاد زمین، جهت نور خورشید، دسترسیها و حتی قوانین محلی جهت ساختوساز.
مثال برای طراحی یک منزل مسکونی، باید بدانید خانواده چند نفره است، چه تعداد اتاق میخواهند، و آیا به فضاهای خاصی مثل اتاق کار یا باغچه نیاز دارند یا خیر.
- تهیه طرح اولیه (اسکیس یا کروکی)
در این مرحله، معمار با یک طرح ساده و کلی شروع میکند که به آن “اسکیس” یا “کروکی” گفته میشود. این طرح اولیه به نوعی یک نقشه دستی و ساده به حساب میآید که معمار بر اساس نیازها و شرایط زمین، شکل کلی فضاها را ترسیم مینماید. این مرحله این امکان را به معمار میدهد تا ایدههای اولیه را به تصویر بکشد و به مشتری نشان دهد.
- توسعه و اصلاح پلان
پس از تأیید طرح اولیه توسط مشتری، معمار شروع به اصلاح و توسعه طرح میکند. در این مرحله، جزئیات بیشتری به پلان اضافه میگردد، مانند ابعاد دقیق اتاقها، محل قرارگیری درها و پنجرهها و چیدمان داخلی فضاها.
مثال : در این مرحله، معمار تغییراتی بر اساس نیاز مشتری ایجاد میکند، مثل بزرگتر کردن اتاق خواب یا اضافه کردن فضای ذخیرهسازی در آشپزخانه.
- در نظر گرفتن سیستمهای فنی
یکی از مراحل مهم در فرآیند طراحی پلان، هماهنگ کردن آن با سیستمهای فنی ساختمان میباشد. این بخش شامل سیستمهای الکتریکی، لولهکشی، گرمایش و سرمایش، تهویه و سایر تأسیسات میشود.
مثال : معمار باید مطمئن شود که سیستم لولهکشی به درستی در دیوارها جایگذاری گردیده و فضای کافی برای سیستم تهویه هوا در سقف در نظر گرفته شده باشد.
- تست و ارزیابی نهایی
در این مرحله، پلان نهایی از لحاظ فنی و عملی ارزیابی میشود. معماران و مهندسان بررسی میکنند که آیا پلان با قوانین محلی ساختوساز مطابقت دارد یا خیر، و اینکه آیا فضاها به درستی سازماندهی شدهاند.
مثال: اگر در این ارزیابی مشخص شود که راهروها بیش از حد باریکند یا در طراحی مسیرهای خروج اضطراری مشکل وجود دارد، معمار باید تغییرات لازم را اعمال نماید.
- نهاییسازی و ارائه پلان
بعد از انجام اصلاحات، پلان نهایی آماده است. این پلان شامل تمام جزئیات دقیق مورد نیاز برای ساخت ساختمان میباشد و به تیمهای ساختوساز و پیمانکاران ارائه میگردد.
مثال: پلان نهایی شامل همهی اطلاعات مربوط به ابعاد، مواد مورد استفاده، محل سیستمهای فنی و حتی دکوراسیون داخلی میشود.

تکنیکهای نوین در طراحی پلان معماری
تکنیکهای نوین در طراحی پلان، به لطف پیشرفتهای فناوری و تغییرات در سبک زندگی و نیازهای کاربران، در حال تغییر و تحول وثژه ای میباشد. معماران امروزی با استفاده از ابزارهای دیجیتال، فناوریهای پایدار و رویکردهای انعطافپذیر، پلانهایی را طراحی میکنند که علاوه بر کارایی، از نظر زیبایی و کاربرپسندی نیز در سطح بالایی قرار دارند. برخی از این تکنیکهای نوین عبارتند از:
- استفاده از نرمافزارهای طراحی سهبعدی (BIM)
- طراحی انعطافپذیر و فضاهای چندمنظوره
- پلانهای باز (Open Plan)
- استفاده از فناوریهای هوشمند
- استفاده از مواد پایدار و دوستدار محیط زیست
- شبیهسازی و واقعیت مجازی (VR)
- تکنیکهای طراحی بایوفیلیک
- طراحی پلانهای ماژولار و پیشساخته

نمونههای موفق پلانهای معماری در جهان
نمونههای موفق پلانهای معماری معمولاً ساختمانهایی هستند که هم از نظر عملکرد و هم از نظر زیباییشناختی و پایداری استانداردهای بالایی دارند. این نمونهها نشاندهنده استفاده هوشمندانه از فضا، مصالح و تکنیکهای نوین طراحی میباشد. در ادامه به بررسی چند نمونه موفق از پلانهای معماری در سراسر جهان میپردازیم که هر یک در نوع خود بینظیرند.
- خانه فارنسورث (Farnsworth House) – آمریکا
معمار: لودویگ میس ون در روهه
این ساختمان که در سال 1951 ساخته شد و یکی از شاهکارهای معماری مدرن است. پلان این خانه به صورت باز طراحی شده است و دیوارهای شیشهای آن مرز بین فضای داخلی و خارجی را به حداقل میرساند. هدف از این طراحی، ایجاد ارتباط عمیقتر با طبیعت است. تنها عناصر جداکننده داخلی، بخشهای ضروری مثل حمام و سرویس بهداشتی میباشد. پلان باز و ساده این خانه باعث شده تا فضا به طور کامل و یکپارچه به نمایش گذاشته شود.
دلیل موفقیت:
خانه فارنسورث به علت استفاده از شفافیت و یکپارچگی فضا و همچنین بهرهگیری از نور طبیعی در تمام ساعات روز، به یکی از نمونههای برتر طراحی پلان باز و مینیمالیستی تبدیل شده است.

- مرکز هنرهای معاصر (Centre Pompidou) – فرانسه
معماران: رنزو پیانو و ریچارد راجرز
این ساختمان که در پاریس قرار دارد، یکی از معروفترین آثار معماری مدرن است. در طراحی پلان این مرکز، سیستمهای سازهای و فنی ساختمان، از جمله لولهها و کابلها، به جای اینکه مخفی باشند، به طور کاملاً آشکار در بیرون از ساختمان قرار دارند.
دلیل موفقیت:
پومپیدو با شکستن قواعد طراحی سنتی و نمایان کردن عناصر فنی، توانسته فضایی نوآورانه و کاربردی ایجاد نماید که هم برای نمایشگاههای هنری و هم برای فعالیتهای دیگر قابل تغییر و تطبیق میباشد.

- خانه آبشار (Fallingwater) – آمریکا
معمار: فرانک لوید رایت
این ساختمان که بر روی یک آبشار ساخته شده، یکی از معروفترین آثار رایت است و به دلیل ارتباط نزدیک با محیط طبیعی مشهور است. در پلان این خانه، رایت به گونهای عمل کرده که هر طبقه به صورت پلکانی و با توجه به جریان آب طراحی شدهاند. دیوارهای شیشهای و تراسهای متعدد، تجربهای بینظیر از طبیعت را در اختیار ساکنان میگذارد.
دلیل موفقیت:
خانه آبشار نمونهای بی همتا از تلفیق معماری و طبیعت است. رایت با استفاده از پلان باز و انعطافپذیر و ایجاد ارتباط مستقیم با محیط اطراف، تجربهای منحصر به فرد آفریده است.

- ساختمان اپرای سیدنی (Sydney Opera House) – استرالیا
معمار: یورن اوتزن
پلان این ساختمان نه تنها به خاطر فرم منحصر به فرد آن که شبیه به بادبانهای کشتی است، بلکه به علت طراحی هوشمندانه فضاهای داخلی آن مورد تحسین قرار میگیرد.
دلیل موفقیت:
ساختمان اپرای سیدنی یکی از نمادهای جهانی معماری مدرن است و به دلیل طراحی منحصر به فرد و برنامهریزی دقیق فضاهای داخلی، به یک شاهکار معماری در طراحی پلانهای فرهنگی و هنری تبدیل شده است.

- ویلا ساوا (Villa Savoye) – فرانسه
معمار: لوکوربوزیه
این ساختمان نمونهای از رویکرد لوکوربوزیه به معماری مدرن میباشد که در آن اصول طراحی مدرن شامل پلان آزاد، استفاده از ستونهای آزاد، نمای شیشهای و تراسهای وسیع به خوبی به نمایش گذاشته میشود. پلان آزاد ویلا ساوا به معمار این امکان را داد تا فضاهای داخلی را بدون نیاز به دیوارهای باربر طراحی کند و نور طبیعی بهخوبی در کل فضا جریان داشته باشد.
دلیل موفقیت:
ویلا ساوا به دلیل استفاده از پلان آزاد و توجه به اصول مدرن معماری به عنوان یکی از موفقترین نمونههای طراحی پلان شناخته میشود. این طرح تأثیر زیادی بر معماری مدرن گذاشته و تا امروز الهامبخش بسیاری از پروژههای معماری میباشد.

- برج خلیفه (Burj Khalifa) – امارات متحده عربی
معمار: آدرین اسمیت
این برج که به عنوان بلندترین ساختمان جهان معروف است، دارای پلان پیچیدهای است که بهخوبی با ساختار سازهای و نیازهای عملیاتی منطبق است. شکل Y مانند پلان برج خلیفه باعث شده تا دید بهتری از مناظر اطراف فراهم شود و فضاهای مسکونی، اداری و هتلی به بهترین شکل ممکن تقسیم بندی شوند.
دلیل موفقیت:
برج خلیفه نه تنها به دلیل ارتفاع چشمگیر خود بلکه به دلیل پلان هوشمندانه و کارآمدی که طراحی شده است، یکی از پروژه های موفق است. این برج نشاندهنده تلفیق زیباییشناسی با عملکرد و تکنولوژی مدرن میباشد.

- استادیوم ملی پکن (Bird’s Nest) – چین
معماران: هرزوگ و دمورون
پلان این استادیوم که برای المپیک 2008 پکن ساخته شد، یکی از خلاقانهترین و شناختهشدهترین طرحهای معماری ورزشی جهان است. سازه پیچیده فولادی که به شکل لانه پرنده طراحی شده، فضای داخلی وسیعی را ایجاد نموده که تمامی نیازهای ورزشی و فرهنگی را برآورده مینماید. همچنین این طراحی به تهویه طبیعی و استفاده بیشتر از نور خورشید کمک میکند.
دلیل موفقیت:
استادیوم ملی پکن به دلیل طراحی نوآورانه و ساختاری که هم به لحاظ زیباییشناختی و هم عملکردی موثر است، یک نمونه موفق در طراحی پلانهای بزرگ ورزشی جهانی به حساب میآید.

آینده پلانهای معماری | تحول پلان معماری به کجا رسیده است
آینده پلانهای معماری بهطور چشمگیری تحت تأثیر تحولات فناوری، تغییرات اجتماعی، و نیازهای محیطی قرار دارد. بهویژه در دنیای امروز، که سرعت تغییرات و تحولات بسیار زیاد است، معماران و طراحان باید برای رویارویی با چالشها و فرصتهای جدید آماده باشند.
تکنولوژیهای نوین، همچون مدلسازی اطلاعات ساختمان (BIM)، واقعیت مجازی (VR)، و سیستمهای هوشمند، امکان طراحی دقیقتر و کارآمدتر را به وجود آوردند همچنین احتمال خطا را کاهش دادند. این فناوریها نه تنها به بهبود کارایی و کاهش هزینهها کمک میکنند، بلکه معماران را قادر میسازند تا طرحهایی انعطافپذیرتر و کاربرپسندتر خلق کنند. این در حالی است که طراحیهای پایدار و توجه به محیط زیست به عنوان یک اولویت اساسی در تمام جهان در نظر گرفته خواهد شد.
توجه به نیاز کاربران نیز در آینده طراحی پلانها از اهمیت بیشتری برخوردار خواهد بود. فضاهای چندمنظوره و انعطافپذیر که امکان تطبیق با تغییرات زندگی روزمره را داشته باشد، دیگر تنها یک انتخاب نیستند، بلکه به یک ضرورت معماری تبدیل شدهاند.

طراحی پلان را جدی بگیرید!
آینده پلانهای معماری به سمت یکپارچگی بیشتر با طبیعت، بهرهوری انرژی، و رضایت کاربران در حال پیش روی است. این تغییرات، معماران را به سوی ایجاد فضاهایی سوق میدهد که هم زیباییشناسی و هم عملکرد را به طرز شگفتانگیزی ادغام کند. در این مسیر، نوآوری، همکاری و پایبندی به اصول اخلاقی و زیستمحیطی از کلیدیترین عناصر موفقیت معماران خواهد بود.
آیندهی پلان های معماری، آیندهای پر از امکانات بیپایان است که معماران را به چالش میکشد تا با خلاقیت و تفکر نوآورانه، فضاهایی بسازند که نه تنها در خدمت انسانها، بلکه در خدمت کره زمین نیز باشد.
سپاس از این که تا انتهای این مطلب ما را همراهی کردید، امید است که این مطلب برای شما مفید واقع شده باشد. نظرات خود را در خصوص مطالب گروه زئوس با ما به اشتراک بگذارید.
